Projet du Village de la Faisanderie

Extraits du dossier

Schéma de principe

Vue d'ensemble

Détails

Détails

 

Projet: le secteur entrée de la ville

  Secteur entrée de la ville

 

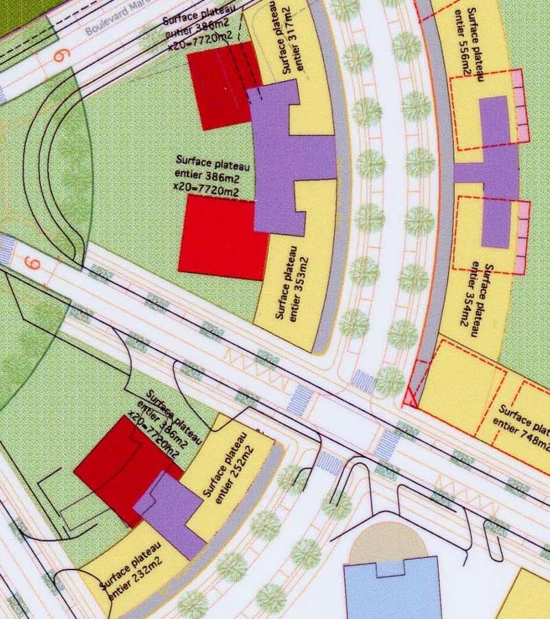
Détails avec les surfaces

 

Retour